Edgbaston -6 Bedroom House

29 Poplar Avenue, Edgbaston, B17 8EG

£579,000

6
2
2

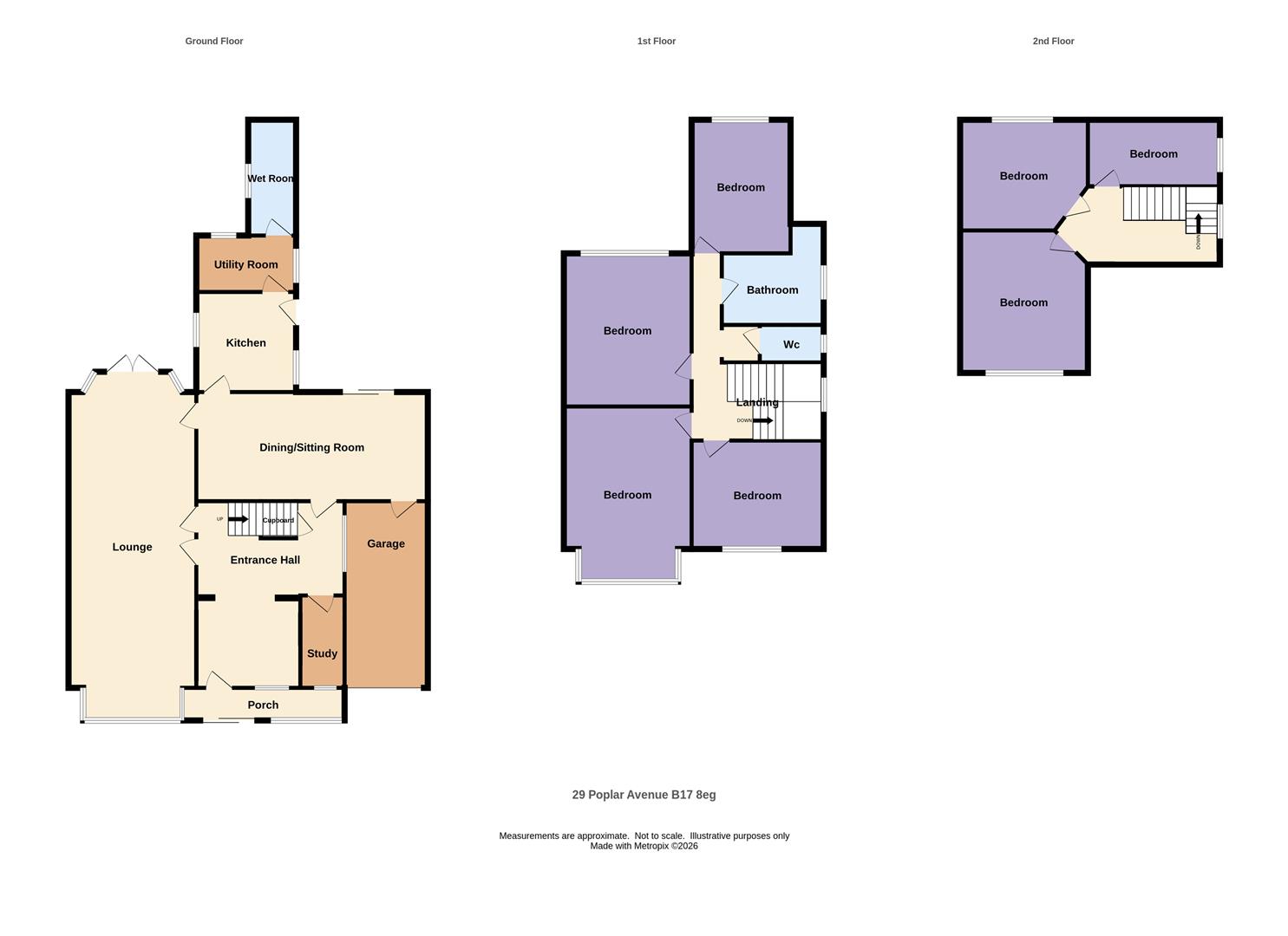
A substantial three storey, traditional style semi detached residence with central heating and double glazing (as specified), porch, good sized hall, walk in cloakroom, spacious through living room, separate dining/sitting room, kitchen, laundry/utility, shower room/WC, six bedrooms, study/store/occasional bedroom, bathroom/WC with shower, separate WC, side garage and garden.

Poplar Avenue is well situated just off Sandon Road in turn leading between Bearwood Road and Hagley Road. It is readily accessible to shopping and other amenities around Bearwood and Harborne, Lightwoods and Warley Parks, the Queen Elizabeth Medical Centre and the University of Birmingham, as well as regular transport services along Hagley Road to comprehensive City Centre shopping, leisure and entertainment facilities.

The property itself is set back from the road behind a mainly block paved forecourt/driveway area with boundary wall and border. The spacious accommodation is set on three floors and can only be appreciated by an internal inspection. Comprising in more detail:

Book A Viewing